

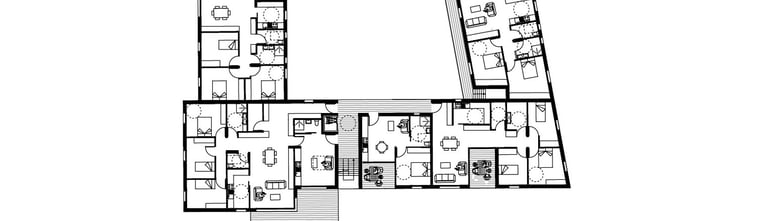
25 Logements
Lieu : Caudebec-lès-Elbeuf (76)
Programme : 25 logements collectifs
Surface : 1 620m²
Matériaux : Béton bas carbone (planchers, fondations), Briques alvéolaires (Façades), Bois (Bardage, ossature bois des attiques isolation laine de bois), Aluminium (menuiseries)










Thomas Lasserre Architecte
© Thomas Lasserre Architecte 2025. Tous droits réservés.
4 rue Anne Frank, 33270 Floirac


